Inde Lanscroon

Maastricht

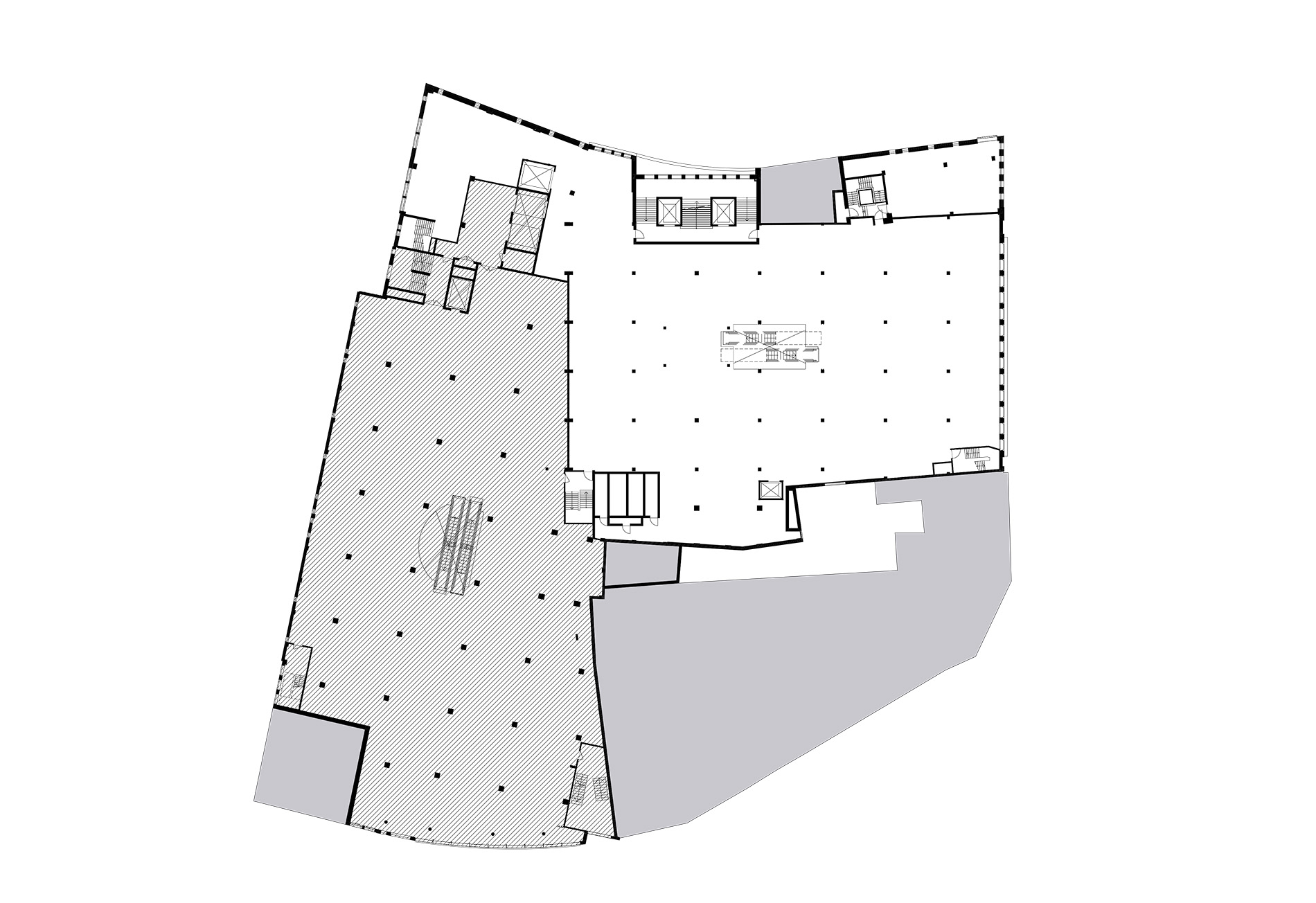
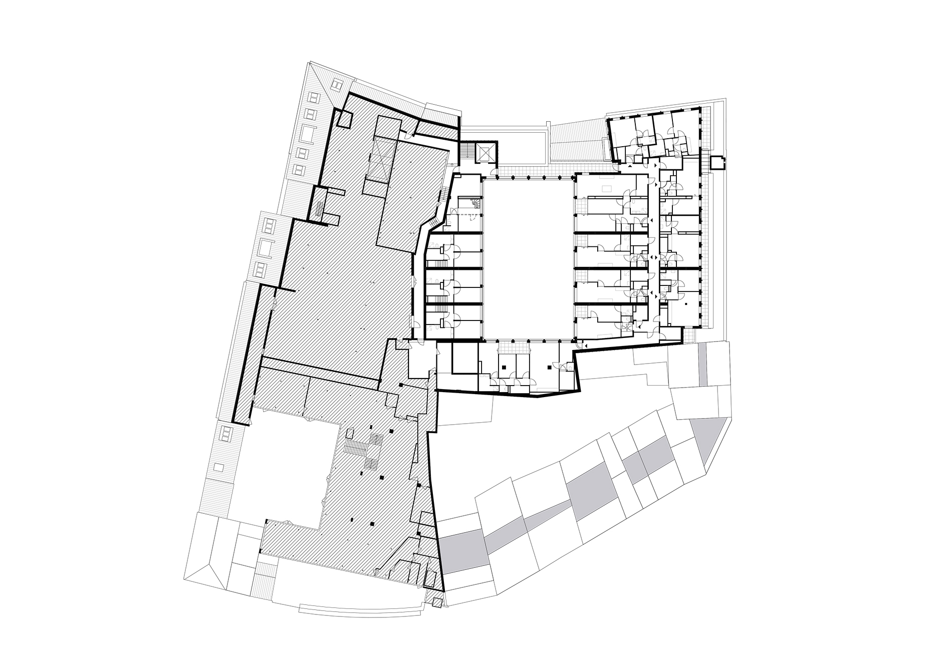
Door de transformatie van het voormalige warenhuis van de V&D aan de Grote Staat in Maastricht (Jan Kuijt, 1932, gemeentelijk monument) krijgt het monumentale gebouw een nieuw leven als multifunctioneel woon- en winkelcomplex. In de onderste bouwlagen (kelder, begane grond en eerste etage) komen drie winkels en op de drie verdiepingen daarboven vijftig appartementen, variërend van circa 45 m2 tot 120 m2.

De belangrijkste ingrepen zijn het toevoegen van een extra bouwlaag op het bestaande gebouw (optoppen) en het realiseren van een hoftuin in het hart van het gebouw. Het ontwerp sluit door zowel vorm, materiaal als kleur aan bij het beschermde dakenlandschap van Maastricht. Tegelijkertijd reageert de ritmiek van de gevelgeleding op die van de gebouwen eronder. De groene hoftuin is ontworpen als een verborgen oase. Zo geeft ‘wonen boven winkels’ een nieuwe impuls aan de historische binnenstad.

De naam Inde Lanscroon verwijst naar het huis De Lanscroon aan de Grote Staat, waar voor 1664 een deel van het stadsbestuur van Maastricht gehuisvest was. De gevelsteen van het voormalige huis De Lanscroon is ingemetseld in de gevel van het huidige pand op ongeveer dezelfde plek als waar De Lanscroon ooit stond.

Inde Lanscoon. Foto: Jordi Huisman. rijnboutt-inde-lanscroon-maatricht (2)
rijnboutt-inde-lanscroon-maatricht (3)
rijnboutt-inde-lanscroon-maatricht (4)
rijnboutt-inde-lanscroon-maatricht (5)
rijnboutt-inde-lanscroon-maatricht (6)
rijnboutt-inde-lanscroon-maatricht (7)
rijnboutt-inde-lanscroon-maatricht (8)
rijnboutt-inde-lanscroon-maatricht (9)
rijnboutt-inde-lanscroon-maatricht (10)
rijnboutt-inde-lanscroon-maatricht (11)
rijnboutt-inde-lanscroon-maatricht (12)
rijnboutt-inde-lanscroon-maatricht (13)
rijnboutt-inde-lanscroon-maatricht (14)
rijnboutt-inde-lanscroon-maatricht (15)
rijnboutt-inde-lanscroon-maatricht (16)
rijnboutt-inde-lanscroon-maatricht (17)
rijnboutt-inde-lanscroon-maatricht (18)
rijnboutt-inde-lanscroon-maatricht (19)
rijnboutt-inde-lanscroon-maatricht (20)
rijnboutt-inde-lanscroon-maatricht (21)
rijnboutt-inde-lanscroon-maatricht (22)
Rijnboutt-IndeLanscroon-Entree-F01-credit Archimatics
Rijnboutt-IndeLanscroon-AuCoin-SNEDE-F01-credit Archimatics
Rijnboutt-Grote-Staat-Maastricht-situatie
Rijnboutt-Grote-Staat-Maastricht-3D-doorsnede
Rijnboutt-Grote-Staat-Maastricht-plattegrond-kelder-400
Rijnboutt-Grote-Staat-Maastricht-plattegrond-bg-400-1
Rijnboutt-Grote-Staat-Maastricht-plattegrond-1e-400-1
Rijnboutt-Grote-Staat-Maastricht-plattegrond-2e-400-1
Rijnboutt-Grote-Staat-Maastricht-plattegrond-3e-400-1
Rijnboutt-Grote-Staat-Maastricht-plattegrond-4e-400-1
Rijnboutt-Grote-Staat-Maastricht-gevel-Grote-Staat-250-1
Rijnboutt-Grote-Staat-Maastricht-gevel-Vijfharingenstraat-250-1
Rijnboutt-Grote-Staat-Maastricht-gevel-Achter-het-Vleeshuis-250
Rijnboutt-Grote-Staat-Maastricht-gevels-hof-150-1
Rijnboutt-Grote-Staat-Maastricht-doorsnede-A-A-250-1
Rijnboutt-Grote-Staat-Maastricht-doorsnede-B-B-250-1

over het project

transformatie van warenhuis naar multifunctioneel gebouw

programma

5.554 m² bvo wonen, 6.941 m² bvo retail

opdrachtverlening

2019

realisatie

2023-2025

opdrachtgever

CBRE Investment Management, FiMek estate, 3W real estate

team

Mattijs Rijnboutt, André Meulenbelt, Carlo Laatst, David Philipsen, Francesco Carrasso, Joost Verheus, Kuba Jekiel, Lennart Brink, Margret van den Broek, Max Both, Michael Maminski, Petrouschka Thumann, Richard Zwagemaker, Robert van Dooren, Sebastian Janusz, Valeria Parras

samenwerking

Ginkel Groep, Herman de Groot Ingenieurs en Vastgoedstrategen, Ingenieursburo Van der Werf & Lankhorst, Janssen de Jong Bouw | a JAJO company, LBP Sight, W4Y adviseurs

beeld

foto’s: Jordi Huisman
tekeningen: Rijnboutt
visualisaties: Archimatics

publicaties en artikelen

Inde Lanscroon in Maastricht opgeleverd Start bouw transformatie voormalige V&D, Grote Staat Maastricht Architects in Ctrl - BIM bij renovaties en herbestemmingen - deel I BIM en Archicad bij renovatie en herbestemming Voormalig warenhuis V&D in Maastricht wordt multifunctioneel complex

Inde Lanscoon. Foto: Jordi Huisman. rijnboutt-inde-lanscroon-maatricht (2)
rijnboutt-inde-lanscroon-maatricht (3)
rijnboutt-inde-lanscroon-maatricht (4)
rijnboutt-inde-lanscroon-maatricht (5)
rijnboutt-inde-lanscroon-maatricht (6)
rijnboutt-inde-lanscroon-maatricht (7)
rijnboutt-inde-lanscroon-maatricht (8)
rijnboutt-inde-lanscroon-maatricht (9)
rijnboutt-inde-lanscroon-maatricht (10)
rijnboutt-inde-lanscroon-maatricht (11)
rijnboutt-inde-lanscroon-maatricht (12)
rijnboutt-inde-lanscroon-maatricht (13)
rijnboutt-inde-lanscroon-maatricht (14)
rijnboutt-inde-lanscroon-maatricht (15)
rijnboutt-inde-lanscroon-maatricht (16)
rijnboutt-inde-lanscroon-maatricht (17)
rijnboutt-inde-lanscroon-maatricht (18)
rijnboutt-inde-lanscroon-maatricht (19)
rijnboutt-inde-lanscroon-maatricht (20)
rijnboutt-inde-lanscroon-maatricht (21)
rijnboutt-inde-lanscroon-maatricht (22)
Rijnboutt-IndeLanscroon-Entree-F01-credit Archimatics
Rijnboutt-IndeLanscroon-AuCoin-SNEDE-F01-credit Archimatics
Rijnboutt-Grote-Staat-Maastricht-situatie
Rijnboutt-Grote-Staat-Maastricht-3D-doorsnede
Rijnboutt-Grote-Staat-Maastricht-plattegrond-kelder-400
Rijnboutt-Grote-Staat-Maastricht-plattegrond-bg-400-1
Rijnboutt-Grote-Staat-Maastricht-plattegrond-1e-400-1
Rijnboutt-Grote-Staat-Maastricht-plattegrond-2e-400-1
Rijnboutt-Grote-Staat-Maastricht-plattegrond-3e-400-1
Rijnboutt-Grote-Staat-Maastricht-plattegrond-4e-400-1
Rijnboutt-Grote-Staat-Maastricht-gevel-Grote-Staat-250-1
Rijnboutt-Grote-Staat-Maastricht-gevel-Vijfharingenstraat-250-1
Rijnboutt-Grote-Staat-Maastricht-gevel-Achter-het-Vleeshuis-250
Rijnboutt-Grote-Staat-Maastricht-gevels-hof-150-1
Rijnboutt-Grote-Staat-Maastricht-doorsnede-A-A-250-1
Rijnboutt-Grote-Staat-Maastricht-doorsnede-B-B-250-1
rijnboutt-inde-lanscroon-maatricht (3)
rijnboutt-inde-lanscroon-maatricht (4)
rijnboutt-inde-lanscroon-maatricht (5)
rijnboutt-inde-lanscroon-maatricht (6)
rijnboutt-inde-lanscroon-maatricht (7)
rijnboutt-inde-lanscroon-maatricht (8)
rijnboutt-inde-lanscroon-maatricht (9)
rijnboutt-inde-lanscroon-maatricht (10)
rijnboutt-inde-lanscroon-maatricht (11)
rijnboutt-inde-lanscroon-maatricht (12)
rijnboutt-inde-lanscroon-maatricht (13)
rijnboutt-inde-lanscroon-maatricht (14)
rijnboutt-inde-lanscroon-maatricht (15)
rijnboutt-inde-lanscroon-maatricht (16)
rijnboutt-inde-lanscroon-maatricht (17)
rijnboutt-inde-lanscroon-maatricht (18)
rijnboutt-inde-lanscroon-maatricht (19)
rijnboutt-inde-lanscroon-maatricht (20)
rijnboutt-inde-lanscroon-maatricht (21)
rijnboutt-inde-lanscroon-maatricht (22)
Rijnboutt-IndeLanscroon-Entree-F01-credit Archimatics
Rijnboutt-IndeLanscroon-AuCoin-SNEDE-F01-credit Archimatics
Rijnboutt-Grote-Staat-Maastricht-situatie
Rijnboutt-Grote-Staat-Maastricht-3D-doorsnede
Rijnboutt-Grote-Staat-Maastricht-plattegrond-kelder-400
Rijnboutt-Grote-Staat-Maastricht-plattegrond-bg-400-1
Rijnboutt-Grote-Staat-Maastricht-plattegrond-1e-400-1
Rijnboutt-Grote-Staat-Maastricht-plattegrond-2e-400-1
Rijnboutt-Grote-Staat-Maastricht-plattegrond-3e-400-1
Rijnboutt-Grote-Staat-Maastricht-plattegrond-4e-400-1
Rijnboutt-Grote-Staat-Maastricht-gevel-Grote-Staat-250-1
Rijnboutt-Grote-Staat-Maastricht-gevel-Vijfharingenstraat-250-1
Rijnboutt-Grote-Staat-Maastricht-gevel-Achter-het-Vleeshuis-250
Rijnboutt-Grote-Staat-Maastricht-gevels-hof-150-1
Rijnboutt-Grote-Staat-Maastricht-doorsnede-A-A-250-1
Rijnboutt-Grote-Staat-Maastricht-doorsnede-B-B-250-1