Amsterdamse Poort

Amsterdam-Zuidoost

Sinds de opening in 1986 is de Amsterdamse Poort een vertrouwd gezicht in Amsterdam-Zuidoost. Het winkelcentrum, destijds een van de eerste centra buiten het historische stadscentrum, was vooruitstrevend in opzet en omvang. Door de voortdurende groei van het stadsdeel en veranderende wensen van bewoners, bezoekers en ondernemers, is de tijd aangebroken voor een grondige transformatie.

In opdracht van eigenaar CBRE Global Investors, in samenwerking met 3W, wordt gewerkt aan een toekomstbestendig en veelzijdig centrumgebied met ruimte voor retail, horeca, maatschappelijke voorzieningen en ontmoetingsplekken.

Rijnboutt is verantwoordelijk voor het ontwerp van de herontwikkeling van clusters 2 en 3. De opgave richt zich op het vernieuwen en uitbreiden van de winkelplinten, het toevoegen van voorzieningen en het verbeteren van de aansluiting met de bestaande woongebouwen. Met zorgvuldige adressering en programmering dragen we bij aan een levendig, sociaal veilig en toegankelijk stadshart voor álle gebruikers en bewoners van de Amsterdamse Poort.

De opgave wordt benaderd vanuit de stedenbouwkundige en architectonische kwaliteiten die in de bestaande structuur besloten liggen. De Amsterdamse Poort heeft een grotendeels orthogonale opzet, waarin lange lijnen worden doorbroken door de karakteristieke honingraatstructuur. Dit ingenieuze plan, met zijn stratenpatroon, symmetrische elementen en sculpturale architectuur van clusters 2 en 3 (Atelier PRO, jaren tachtig), roept associaties op met delen van het Plan Zuid.

De rijke houten winkelpuien van de Amsterdamse School geven de bouwblokken in Amsterdam-Zuid op maaiveldniveau een uitgesproken allure: royale etalages, duidelijk herkenbare entrees en verfijnd gedetailleerde kaders die naadloos aansluiten bij de architectuur. Diezelfde kwaliteit verdient de entree tot de Amsterdamse Poort. De nieuwe plinten krijgen daarom royale puien en houten kaders, gecombineerd met een eigentijdse uitstraling die past bij de herontwikkeling van het gebied.

De omgevingsvergunning van cluster 3 is verleend en onherroepelijk verklaard. De bouw van de nieuwe plinten is gestart in het najaar van 2025. De herontwikkeling van de plinten van cluster 2 is nog in een ontwikkelstadium, maar is verwant aan dat van cluster 3. De getoonde visualisaties en tekeningen van het ontwerp betreffen enkel cluster 3.

1_9-compressed rijnbout architecten amsterdamse poort lufo
rijnbout architecten amsterdamse poort - situatie
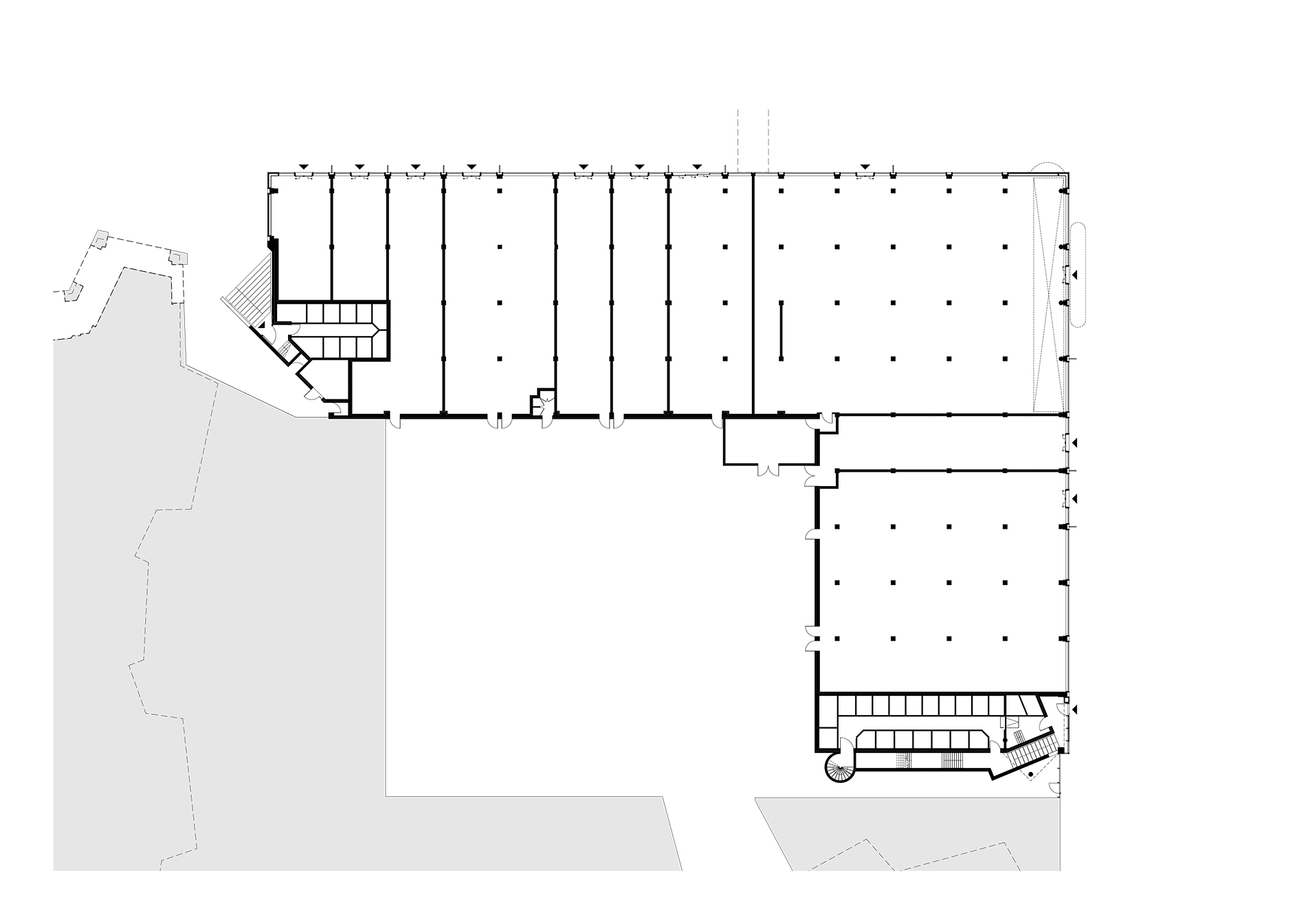
rijnbout architecten amsterdamse poort -plattegrond begane grond
rijnbout architecten amsterdamse poort - gevel oost (Abcouderpad)
rijnbout architecten amsterdamse poort - gevel noord (winkelstraat)
rijnbout architecten amsterdamse poort - gevel west
rijnbout architecten amsterdamse poort - gevelfragment puitype A
rijnbout architecten amsterdamse poort - gevelfragment puitype B
rijnbout architecten amsterdamse poort - gevelfragment puitype A hoog
rijnbout architecten amsterdamse poort - gevelfragment puitype B hoog
rijnbout architecten amsterdamse poort - gevelfragment puitype C
rijnbout architecten amsterdamse poort - gevelfragment opgang dek oost
rijnbout architecten amsterdamse poort - gevelfragment opgang dek west

over het project

herontwikkeling winkelplinten clusters 2 en 3

programma

retail en wonen

opdrachtverlening

2023

opdrachtgever

CBRE Investment Management (Netherlands), 3W Real Estate

team

Frederik Vermeesch, Michael Maminski, Jurjen de Gans, Bogdan Vladescu, Kristina Delcheva, André Meulenbelt, Joost Verheus, Sebastiaan Hildebrandt

beeld

impressie: Vivid Vision
archieffoto’s: Doriann Kransberg / Stadsarchief Amsterdam

publicaties en artikelen

Start bouw cluster 3 van de Amsterdamse Poort

1_9-compressed rijnbout architecten amsterdamse poort lufo
rijnbout architecten amsterdamse poort - situatie
rijnbout architecten amsterdamse poort -plattegrond begane grond
rijnbout architecten amsterdamse poort - gevel oost (Abcouderpad)
rijnbout architecten amsterdamse poort - gevel noord (winkelstraat)
rijnbout architecten amsterdamse poort - gevel west
rijnbout architecten amsterdamse poort - gevelfragment puitype A
rijnbout architecten amsterdamse poort - gevelfragment puitype B
rijnbout architecten amsterdamse poort - gevelfragment puitype A hoog
rijnbout architecten amsterdamse poort - gevelfragment puitype B hoog
rijnbout architecten amsterdamse poort - gevelfragment puitype C
rijnbout architecten amsterdamse poort - gevelfragment opgang dek oost
rijnbout architecten amsterdamse poort - gevelfragment opgang dek west
rijnbout architecten amsterdamse poort - situatie
rijnbout architecten amsterdamse poort -plattegrond begane grond
rijnbout architecten amsterdamse poort - gevel oost (Abcouderpad)
rijnbout architecten amsterdamse poort - gevel noord (winkelstraat)
rijnbout architecten amsterdamse poort - gevel west
rijnbout architecten amsterdamse poort - gevelfragment puitype A
rijnbout architecten amsterdamse poort - gevelfragment puitype B
rijnbout architecten amsterdamse poort - gevelfragment puitype A hoog
rijnbout architecten amsterdamse poort - gevelfragment puitype B hoog
rijnbout architecten amsterdamse poort - gevelfragment puitype C
rijnbout architecten amsterdamse poort - gevelfragment opgang dek oost
rijnbout architecten amsterdamse poort - gevelfragment opgang dek west